Ниже приведены таблицы признаков воздействия на конструкции и балльность категорий состояния конструкций. Данные таблицы можно использовать приблизительно, и при обследовании конструкций больше опираться на СП 13-102-2003.
Табл. 1 - Оценка состояния стальных конструкций по внешним признакам
| Категория состояния конструкции | Признаки силовых воздействий на конструкцию |
Признаки воздействия внешней среды на конструкцию |
| 1 | Нет | Нет |
| 2 | Нет | Местами разрушено антикоррозионное покрытие. На отдельных участках коррозия отдельными пятнами с поражением до 5 % сечения. Местные погнутости от ударов транспортных средств и другие повреждения, приводящие к ослаблению сечения до 5 % |
| 3 | Прогибы изгибаемых элементов превышают 1/150 пролета | Пластинчатая ржавчина с уменьшением площади сечения несущих элементов до 15 %. Местные погнутости от ударов транспортных средств и другие механические повреждения, приводящие к ослаблению сечения до 15 %. Погнутость узловых фасонок ферм. |
| 4 | Прогибы изгибаемых элементов более 1/75 пролета. Потеря местной устойчивости конструкций (выпучивание стенок и поясов балок и колонн). Срез отельных болтов или заклепок в многоболтовых соединениях. | Коррозия с уменьшением расчетного сечения несущих элементов до 25 %. Трещины в сварных швах или в околошовной зоне. Механические повреждения, приводящие к ослаблению сечения до 25 %. Отклонения ферм от вертикальной плоскости более 15 мм. Расстройство узловых соединений от проворачивания болтов или заклепок. |
| 5 | Прогибы изгибаемых элементов более 1/50 пролета. Потеря общей устойчивости балок или сжатых элементов. Разрыв отдельных растянутых элементов ферм. Наличие трещин в основном материале элементов. | Коррозия с уменьшением расчетного сечения и несущих элементов более 25 %. Расстройство стыков со взаимным смещением опор. |
Табл. 2 - Оценка состояния железобетонных конструкций по внешним признакам
| Категория состояния конструкции | Признаки силовых воздействий на конструкцию |
Признаки воздействия внешней среды на конструкцию |
| 1 | Волосяные трещины (до 0,1 мм) | Имеются отдельные раковины, выбоины. |
| 2 | Трещины в растянутой зоне бетона не превышают 0,3 мм | На отдельных участках с малой величиной защитного слоя проступают следы коррозии распределительной арматуры или хомутов. Шелушение ребер конструкций. На поверхности бетона мокрые или масляные пятна |
| 3 | Трещины в растянутой зоне бетона до 0,5 мм. | Продольные трещины в бетоне вдоль арматурных стержней от коррозии арматуры. Коррозия арматуры до 10 % площади стержней. Бетон в растянутой зоне на глубине защитного слоя между стержнями арматуры легко крошится. Снижение прочности бетона до 20 %. |
| 4 | Ширина раскрытия нормальных трещин в балках не более 1 мм и протяженность трещин более 3/4 высоты балки. Сквозные нормальные трещины в колоннах не более 0,5 мм. Прогибы изгибаемых элементов более 1/75 пролета. |
Отслоение защитного слоя бетона и оголение арматуры. Коррозия арматуры до 15 %. Снижение прочности бетона до 30 %. |
| 5 | Ширина раскрытия нормальных трещин в балках более 1 мм при протяженности трещин более 3/4 их высоты. Косые трещины, пересекающие опорную зону и зону анкеровки растянутой арматуры балок. Сквозные наклонные трещины в сжатых элементах. Хлопающие трещины в конструкциях, испытывающих знакопеременные воздействия. Выпучивание арматуры в сжатой зоне колонн и балок. Разрыв отдельных стержней рабочей арматуры в растянутой зоне, разрыв хомутов в зоне наклонной трещины. Раздробление бетона в сжатой зоне. Прогибы изгибаемых элементов более 1/50 пролета при наличии трещин в растянутой зоне более 0,5 мм. | Оголение всего диаметра арматуры. Коррозия арматуры более 15 % сечения. Снижение прочности бетона более 30 %. Расстройство стыков. |
Табл. 3 - Оценка состояния каменных конструкций по внешним признакам
| Категория состояния конструкции | Признаки силовых воздействий на конструкцию |
Признаки воздействия внешней среды на конструкцию |
| 1 | Трещины в отдельных кирпичах, не пересекающие растворные швы. | |
| 2 | Волосные трещины, пересекающие не более двух рядов кладки (длиной 15 - 18 см). | |
| 3 | Волосные трещины, при пересечении не более четырех рядов кладки при числе трещин не более четырех на 1 м ширины (толщины) стены, столба или простенка. Вертикальные и косые трещины (независимо от величины раскрытия), пересекающие не более двух рядов кладки. |
Размораживание и выветривание кладки, отслоение облицовки на глубину до 15 % толщин. |
| 4 | Вертикальные и косые трещины в несущих стенах на высоту не более четырех рядов кладки. Образование вертикальных трещин между продольными и поперечными стенами, разрывы или выдергивания отдельных стальных связей и анкеров крепления стен к колоннам и перекрытиям. Местное (краевое) повреждение кладки на глубину до 2 см под опорами ферм, балок и перемычек в виде трещин и лещадок; вертикальные трещины по концам опор, пересекающие не более двух рядов кладки. | Размораживание и выветривание кладки, отслоение облицовки за глубину до 25 % толщины. Наклоны и выпучивание стен и фундаментов в пределах этажа не более чем на 1/6 их толщины. Смещение плит перекрытий на опорах не более 1/5 глубины заделки, но не более 2 см. |
| 5 | Вертикальные и косые трещины в несущих стенах и столбах на высоту более четырех рядов кладки. Отрыв продольных стен от поперечных в местах их пересечения, разрывы или выдергивания стальных связей и анкеров, крепящих стены к колоннам и перекрытиям. Повреждение кладки под опорами ферм, балок и перемычек в виде трещин, раздробления камня или смещения рядов кладки по горизонтальным швам на глубину более 2 см; образование вертикальных или косых трещин, пересекающих более двух рядов кладки. | Размораживание и выветривание кладки на глубину до 40 % толщины. Наклоны и выпучивание стен в пределах этажа на 1/3 их толщины и более смещение (сдвиг) стен, столбов и фундаментов по горизонтальным швам. Смещение плит перекрытий на опорах более 1/5 глубины заделки в стене. |
Табл. 4 - Оценка состояния деревянных конструкций по внешним признакам
| Категория состояния конструкции | Признаки силовых воздействий на конструкцию |
Признаки воздействия внешней среды на конструкцию |
| 1 | Волосные усадочные трещины в конструкциях. | |
| 2 | Ослабление креплений отдельных болтов, хомутов, скоб. | Большие щели между досками наката и балками перекрытия. |
| 3 | Продольные трещины в конструкциях. Сдвиги и отслоения в швах и в узлах конструкций заметные на глаз и частичные зазоры в сплоченных дощатых пакетах, между отдельными рабочими сдвигающимися поверхностями более 2 мм. Прогибы изгибаемых элементов превышают предельные значения СНиП II-26-80. | Следы протечек, мокрые пятна в конструкциях. Гниль в мауэрлате и в концах стропильных ног, снижающая прочность до 15 %. |
| 4 | Глубокие трещины в элементах. Трещины, в работающих на скалывание торцах по ширине более 25 % от толщины элемента. Сильное обмятие и зазоры более 3 мм в рабочих поверхностях врубок. Смятие древесины вдоль волокон по линии болтов и нагелей на 1/2 их диаметра. Потеря местной устойчивости элементов конструкций. Прогибы изгибаемых элементов более 1/75 пролета. | Гниль в местах заделки балок в наружные стены. Гниль в мауэрлате, стропилах, обрешетке, накате, снижающая прочность до 25 %. |
| 5 | Прогибы изгибаемых элементов более 1/50 пролета. Быстроразвивающиеся деформации. Сквозные трещины в накладках стыков по линии болтов ферм. Надломы и разрушения отдельных конструкций. Скалывание врубок. Потеря устойчивости конструкций (поясов ферм, арок, колонн). | Поражение гнилью и жучком строительных конструкций, приводящих к снижению их прочности более 25 %. |
Примечание. Оценка повреждений стальных элементов металло-деревянных конструкций производится по табл. 1
Табл. 5 - Оценка технического состояния эстакад и отдельно стоящих опор под технологические трубопроводы по внешним признакам
| Категория состояния конструкции | Признаки силовых воздействий на конструкцию |
Признаки воздействия внешней среды на конструкцию |
| Железобетонные эстакады | ||
| 2 | Нет | Ржавые пятна, следы коррозии распределительной арматуры на бетонной поверхности. Образование видимых трещин вдоль хомутов и распределительной арматуры с малым защитным слоем из-за коррозии арматуры |
| 3 | Образование трещин в балках в растянутой зоне до 0,5 мм | Образование продольных трещин вдоль рабочей арматуры с раскрытием трещин 1 - 6 мм из-за коррозии арматуры |
| 4 | Ширина раскрытия нормальных трещин в растянутой зоне изгибаемых элементов до 1 мм. Деформации, перекосы и разрушение отдельных траверс из-за перенапряжения. Осадка отдельных фундаментов более 0,002В, где В - расстояние между опорами, а крен превышает 0,002 | Отслоение защитного слоя железобетонных конструкций с уменьшением сечения арматуры до 15 %, из-за коррозии арматуры. Снижение прочности бетона до 30 %. |
| 5 | Ширина раскрытия трещин изгибаемых элементов более 1 мм. Раздробление бетона сжатой зоны. Разрыв арматуры в балках и колоннах опор. Разрушения траверс в пролете из-за перенапряжения. Выпучивание отдельных стержней сжатой зоны колонн, балок и ферм. Крен опор превышает 0,05 |
|
| Стальные эстакады | ||
| 2 | Нет | Местное разрушение антикоррозионного покрытия. На отдельных участках коррозия пятнами с поражением до 5 % сечения |
| 3 | Относительные прогибы изгибаемых элементов более 1/200 | Пластинчатая ржавчина с уменьшением площади сечения элементов до 10 % из-за коррозии. Отсутствие ряда опорных частей под трубами. Местные погнутости от ударов транспортных средств |
| 4 | Пластические деформации (изгиб) траверс из-за температурных деформаций. Потеря местной устойчивости отдельных конструкций (выпучивание стенок и поясов). Трещины в сварных швах. Прогибы изгибаемых элементов более 1/75 пролета. Крен опор превышает 0,002 |
Коррозия элементов с уменьшением расчетного сечения до 25 %. Щелевая коррозия связей с разрывом сварных швов. Отклонение ферм от вертикальной плоскости более 15 мм |
| 5 | Потеря общей устойчивости балок и сжатых элементов колонн и ферм. Разрыв отдельных растянутых элементов среды. Наличие трещин в основном материале элементов. Разрушение траверс в пролете из-за перегрузки. Прогибы изгибаемых элементов более 1/50 пролета. Крен опор превышает 0,05 |
Коррозия с уменьшением расчетного сечения несущих элементов более 25 %. Расстройство стыков опирания пролетных строений |
Табл. 6 - Оценка технического состояния железобетонных емкостных сооружений по внешним признакам
| Категория состояния конструкции | Признаки силовых воздействий на конструкцию |
Признаки воздействия внешней среды на конструкцию |
| 2 | Трещины в растянутой зоне бетона до 0,3 мм | Следы коррозии распределительной арматуры. Выщелачивание и частичное разрушение бетона в уровне жидкости. Отдельные механические повреждения бетона, не превышающие 5 % сечения. Частичное разрушение антикоррозионного покрытия стальных закладных деталей и конструкций, на отдельных участках коррозия отдельными пятнами с поражением до 5 % сечения. Разрушение отмосток вокруг сооружения |
| 3 | Трещины в растянутой зоне бетона до 0,5 мм | Образование продольных трещин вдоль арматуры от ее коррозии, местами обнажение арматуры из-за разрушения бетона, разрушение бетона на глубине защитного слоя бетона. Пластинчатая ржавчина на стержнях оголенной арматуры в зоне продольных трещин в бетоне вдоль арматурных стержней или на закладных деталях, металлоконструкциях (коррозия стали до 10 %) стен. Снижение прочности бетона стен, днища покрытия до 20 % и до 30 % в прочих конструкциях. Разрушение бетона отдельных стыков сборных стен. |
| 4 | Наличие трещин шириной более 0,5 мм в стенах, днищах и покрытии. Разрушение второстепенных конструкций: проходных мостиков, лотков и т.п. Неравномерные осадки и крен сооружения заметные на глаз. Расстройство стыков сборных элементов покрытия со взаимным их смещением. |
Отслоение и разрушение защитного слоя стены с оголением арматуры. Снижение прочности бетона стен и покрытия до 30 %. Коррозия арматуры до 15 %. сечения. Коррозия закладных деталей до 25 % сечения. Потеря герметичности покрытия и стен |
| 5 | Ширина раскрытия нормальных трещин в стенах, днище и покрытии более 1 мм. Выпучивание арматуры и смятие бетона в колоннах. Разрыв отдельных стержней рабочей арматуры в растянутой зоне и хомутов. Прогибы изгибаемых элементов покрытия и стен более 1/50 пролета при наличии трещин в растянутой зоне |
Коррозия арматуры стен и покрытий более 15 % сечения. Оголение всего диаметра рабочей арматуры изгибаемых элементов стен и покрытия. Снижение прочности бетона более 30 %. Коррозия стальных несущих закладных деталей более 30 % |
Табл. 7 - Оценка технического состояния стальных резервуаров по внешним признакам
| Категория состояния конструкции | Признаки силовых воздействий на конструкцию |
Признаки воздействия внешней среды на конструкцию |
| 2 | Равномерная осадка основания до 20 см. Разность осадок диаметрально противоположных точек контура днища до 80 мм. Разность осадок основания по периметру между смежными точками кольцевого фундамента, отстоящими друг от друга на расстоянии 6 м до 3 см. Крен резервуара до 0,002 |
Разрушение местами антикоррозионного покрытия. Коррозия пятнами. Отдельные вмятины в корпусе и покрытии глубиной не более 50 мм. Выпучины и вмятины на поверхности стенки не превышают 40 мм |
| 3 | Значительная до 30 см равномерная осадка резервуара. Разность осадок диаметрально противоположных точек контура днища до 10 см. Общий крен резервуара до 0,005. Выпучина и хлопун днища высотой до 200 мм на площади до 2 м2 |
Местная просадка под днищем глубиной не более 150 мм на площади не более 2 м, образование зазора между днищем и основанием от его осыпания. Выпучины и вмятины на поверхности стенок до 60 мм. Коррозия на отдельных участках или на всей длине вертикальных и горизонтальных сварных соединений внутренней поверхности стенки резервуара. Характер коррозии: точечные углубления осповидного типа и группа раковин глубиной от 2 до 3 мм, переходящие в сплошные полосы. Коррозия внутренней поверхности первого пояса стенки на значительной длине в зоне примыкания к днищу. Характер коррозии: группы раковин глубиной до 1,5 мм, а также точечные углубления осповидного типа. Пластинчатая ржавчина покрытия с уменьшением площади сечения элементов до 15 %. |
| 4 | Равномерная осадка основания более 30 см. Общий крен резервуара до 0,02. Местная выпучина на первом поясе стенки резервуара, возникающая в результате осадки подводящего трубопровода. Выпучина-складка на днище с резкими перегибами и изломами, выпучины высотой более 200 мм на площади более 2 м2. Трещины в сварных швах конструкций покрытия длиной до 100 мм без выхода на основной металл. Потеря местной устойчивости стен и покрытия от вакуума. Отрыв поясов полуферм покрытия от стенки резервуара. Центральная опорная стойка поднялась |
Зазоры между бетонным кольцом основания и окрайком днища до 100 мм на значительном протяжении. Коррозия днища и кровли до 35 % сечения. Коррозия стен с уменьшением сечения до 25 %. Выпучины и вмятины на поверхности стен более 60 мм |
| 5 | Трещины в сварных швах днища и стен. Трещины в основном металле стен и днищ. Потеря устойчивости стен (гофры) из-за неравномерного крена. Разрушения конструкций покрытия. Общий крен резервуара более 0,02 |
Зазоры между днищем и основанием более 100 мм на значительном протяжении. Коррозия стен резервуара более 25 % сечения. Коррозия днища и кровли более 35 % |
Табл. 8 - Оценка технического состояния стальных конвейерных галерей по внешним признакам
| Категория состояния конструкции | Признаки силовых воздействий на конструкцию |
Признаки воздействия внешней среды на конструкцию |
| 2 | Нет | Местное разрушение антикоррозионного покрытия. На отдельных участках коррозия пятнами с поражением до 5 % сечения |
| 3 | Прогибы балки ферм превышают 1/250 пролета. Поперечные отклонения опор превышают 1/250 высоты опор до низа ферм |
Пластинчатая ржавчина с уменьшением из-за коррозии площади сечения элементов до 10 %. Местные погнутости от ударов транспортных средств. Погнутость узловых фасонок ферм |
| 4 | Потеря местной устойчивости конструкций (выпучивание стенок и поясов балок). Трещины в швах или околошовной зоне. Срез отдельных болтов в многоболтовом соединении. Сильная вибрация балок и ферм. Прогибы элементов превышают 1/75 пролета |
Коррозия элементов с уменьшением расчетного сечения несущих элементов до 25 %. Отклонение ферм от вертикальной плоскости более 15 мм. Щелевая коррозия сочленяемых элементов (например, спаренных уголков ферм), приводящая к выпучиванию элементов и частичному разрушению сварных швов. Местные погнутости опор транспортными средствами. Отслоение защитного слоя бетона перекрытий |
| 5 | Наличие трещин в основном металле в особенности в растянутых и изгибаемых элементах. Прогибы балок и ферм более 1/50 пролета. Потеря общей устойчивости балок и сжатых элементов ферм. Разрыв отдельных растянутых элементов |
Коррозия несущих конструкций более 25 % сечения. Расстройство стыков со взаимным смещением опор |
Табл. 9 - Оценка технического состояния железобетонных силосов по внешним признакам
| Категория состояния конструкции | Признаки силовых воздействий на конструкцию |
Признаки воздействия внешней среды на конструкцию |
| 2 | Трещины в стенах до 0,3 мм | Следы коррозии распределительной арматуры. Изменение окраски бетона. Частичное разрушение антикоррозионного покрытия стальных закладных деталей и конструкций. Повреждение отмосток вокруг силосов |
| 3 | Трещины в подсилосных воронках до 0,5 мм. Трещины вертикальные в стенах силосов с раскрытием до 0,8 мм при длине менее 1/4Н, где Н - высота стен силосов. Трещины горизонтальные с раскрытием до 1 мм, расположенные через 1 - 2 м по высоте. Отдельные бреши во внутренних стенах размером не более 40×40 см без выпученности бетона в зоне брешей и трещин, отходящих от брешей. Средние осадки силосных корпусов более 40 см, а крен более 0,004 |
Местами отслоение защитного слоя бетона стен. Коррозия арматуры до 10 %. Местами обнажение арматуры из-за разрушения бетона |
| 4 | Трещины в подсилосных воронках до 1 мм. Вертикальные трещины в стенах с раскрытием до 1 мм при длине трещин более 1/4Н при количестве не более трех на одном силосе. Отдельные бреши в наружных стенах силосов размером 40×40 см без выпученностей бетона в зоне брешей и трещин, отходящих от брешей. Выпучивание стен силосов с отдельными трещинами. Выпучивание домкратных стержней. Крен силосного корпуса более 0,012 |
Разрушение защитного слоя бетона с оголением арматуры. Коррозия арматуры до 15 % сечения. Снижение прочности бетона фундаментной плиты до 30 %. Уменьшение сечения стальных воронок от истирания до 25 % их сечения |
| 5 | Трещины в силосах с раскрытием более 1 мм при их длине более 1/4Н. Горизонтальные трещины раскрытия более 0,5 мм через 15 - 30 см в надкапительной зоне или в простенках стен, над фундаментом плиты. Сетка пересекающихся горизонтальных и вертикальных трещин с раскрытием более 0,3 мм на отдельных участках. Смятие бетона по горизонтальным швам бетонирования в отдельных силосах. Бреши в наружных стенах силосов размером более 40×40 см при наличии выпученностей в зоне брешей. Выпучивание домкратных стержней с обрывами горизонтальной арматуры. Сдвиги участков стен силосов по горизонтальным плоскостям |
Коррозия арматуры более 15 %. сечения. Снижение прочности бетона фундаментной плиты более 30 %. Уменьшение сечения стальных воронок от истирания более 25 % сечения |
Табл. 10 - Оценки технического состояния градирен по внешним признакам
| Категория состояния конструкции | Признаки силовых воздействий на конструкцию |
Признаки воздействия внешней среды на конструкцию |
| 2 | Трещины не превышают 0,3 мм | Местное разрушение защитного слоя бетона. Признаки разрушения бетона на входных окнах. Следы коррозии распределительной арматуры. Потеки конденсата на наружной поверхности оболочки. Зоны фильтрации и выщелачивания бетона в верхней части градирни. Антикоррозионное покрытие стальных конструкций и деталей разрушено |
| 3 | Трещины в растянутой зоне бетона до 0,5 мм. Прогибы изгибаемых элементов превышают 1/150 пролета |
Продольные трещины в бетоне вдоль арматурных стержней от коррозии арматуры. Коррозия арматуры до 10 % площади стержней. Разрушение бетона в зоне входных окон и в местах соприкасания с водой в резервуаре. Разрушение бетона в районе швов оболочки градирни. Обнажение арматуры оболочки в ряде мест с признаками ее коррозии особенно в местах стыковки ярусов бетонирования. Небольшие сквозные отверстия в оболочке. Частичное разрушение торкрета внутренней поверхности оболочки. Коррозия стальных конструкций и деталей до 15 % |
| 4 | Ширина раскрытия нормальных трещин в балках не более 1 мм. Сквозные нормальные трещины в колоннах до 0,5 мм. Прогибы изгибаемых элементов до 1/50 пролета. Края сооружения более 0,004 |
Отслоение защитного слоя бетона и оголение арматуры большой части наружной поверхности оболочки. Разрушение защитного слоя бетона стоек наклонной колоннады бетона до 30 %. Сквозные отверстия диаметром 30 - 200 мм в оболочке. Разрушение слоя торкрета на большей части внутренней поверхности. Зона фильтрации с выщелачиванием составляет 1/3 площади поверхности оболочки градирен. Коррозия арматуры до 15 % сечения. Коррозия стальных конструкций до 25 % сечения |
| 5 | Ширина раскрытия нормальных трещин в балках более 1 мм. Косые трещины, пересекающие опорную зону балок. Сквозные наклонные трещины в сжатых элементах. Выпучивание сжатой продольной арматуры. Разрыв отдельных стержней рабочей арматуры в растянутой зоне, разрыв хомутов в зоне наклонной трещины. Раздробление бетона в сжатой зоне. Прогибы изгибаемых элементов более 1/50 пролета. Потеря устойчивости отдельных конструкций |
Оголение всего диаметра арматуры. Коррозия арматуры более 15 % сечения. Снижение прочности бетона более 30 %. Коррозия стальных конструкций и более 25 % сечения. Расстройство стыков со взаимным смещением опор |
Табл. 11 - Оценка технического состояния кирпичных и железобетонных дымовых труб по внешним признакам
| Категория состояния конструкции | Признаки силовых воздействий на конструкцию |
Признаки воздействия внешней среды на конструкцию |
| Кирпичные трубы | ||
| 2 | Трещины, пересекающие не более двух рядов кладки | Антикоррозионное покрытие стальных конструкций и деталей разрушено |
| 3 | Вертикальные трещины в кладке с шириной раскрытия до 1 мм. Крен трубы не превышает 0,004 |
Коррозия стальных колец и металлоконструкций (лестницы, площадки) до 15 %. |
| 4 | Сквозные вертикальные трещины в кладке с шириной раскрытия до 5 мм. Горизонтальные трещины в кладке длиной менее 1/3 периметра ствола трубы |
Бочкообразные выпучины кладки между стяжными кольцами. Приподнятие колпака оголовка трубы. Коррозия металлоконструкций до 25 %. |
| 5 | Вертикальные трещины в кладке с шириной раскрытия более 5 мм. Горизонтальные трещины в кладке длиной более 1/3 периметра ствола трубы. Разрыв стяжных колец |
Разрушение оголовка и выпадения отдельных его звеньев и кирпичей. Кирпичная кладка выпучилась и покрыта трещинами. Связь кирпича с раствором нарушена. Коррозия металлоконструкций более 25 % |
| Железобетонные трубы | ||
| 2 | Трещины не превышают 0,3 мм. |
Шелушение защитного слоя бетона, местное разрушение защитного слоя бетона. Антикоррозионное покрытие стальных конструкций разрушено |
| 3 | Образование вертикальных трещин с шириной раскрытия до 0,5 мм. Крен трубы не превышает 0,005 |
Образование вертикальных трещин над арматурой вследствие ее коррозии. Увлажнение бетона ствола с образованием потеков конденсата, с выщелачиванием бетона. Коррозия арматуры до 10 % площади стержней. Коррозия стальных конструкций до 15 %. Коррозия футеровки на глубину более 5 мм, раствора более 15 мм. Наличие крупнопористого бетона или бетона с недостаточным количеством цементного камня по толщине ствола более 50 мм и от 1/8 до 1/6 окружности трубы. Вертикальные трещины в газоходах. Разрушение отмостки вокруг трубы |
| 4 | Отслаивание защитного слоя от перегрузок в нижней зоне трубы. Крен трубы превышает 0,005. Образование вертикальных трещин с шириной раскрытия до 2 мм |
Разрушение, отслаивание защитного слоя бетона и оголение арматуры на длине окружности более 1 м. Разрушение бетона шва бетонирования в одном месте до 1/4 длины окружности. Коррозия арматуры до 15 % сечения. Коррозия стальных конструкций до 25 % сечения. Местами выпучивание футеровки |
| 5 | Выпучивание вертикальных арматурных стержней ствола. Раздробление бетона сжатой зоны. Прогибы трубы более 1/100 высоты. Трещины в стволе более 2 мм |
Расслоение бетона по толщине стенки ствола. Разрушение шва бетонирования в одном месте более 1/4 длины окружности. Обвал футеровки. Коррозия арматуры более 15 % сечения. Снижение прочности бетона более 30 %. Коррозия стальных конструкций более 25 % сечения. Сквозные разрушения ствола. Расслоение и выпучивание футеровки по всей поверхности |
Табл. 12 - Оценка технического состояния железобетонных тоннелей по внешним признакам
| Категория состояния конструкции | Признаки силовых воздействий на конструкцию |
Признаки воздействия внешней среды на конструкцию |
| 2 | Трещины в бетоне с шириной раскрытия до 0,3 мм | На отдельных участках с малой величиной защитного слоя проступают следы коррозии распределительной арматуры. На поверхности бетона мокрые или масляные пятна, высолы, изменение цвета бетона |
| 3 | Трещины в растянутой зоне бетона до 0,5 мм | В отдельных местах отслоение защитного слоя бетона. Продольные трещины вдоль арматурных стержней от коррозии арматуры. Бетон в растянутой зоне на глубине защитного слоя легко крошится от размораживания. Протечки перекрытия тоннеля от повреждения гидроизоляции до 5 % площади перекрытия. Смещение стенок сборных элементов тоннелей относительно друг друга, нарушение изоляции в стыках и деформационных швах вследствие чего происходит протечка грунтовых вод. Повреждения от пробивки отверстий в перекрытии. Промасливание перекрытия и днища |
| 4 | Ширина раскрытия нормальных трещин в конструкциях перекрытия до 1 мм. Прогибы изгибаемых элементов более 1/75 пролета. Трещины в местах стыков блоков до 10 мм от неравномерных осадок |
Отслоение защитного слоя бетона и оголение арматуры конструкции перекрытия на значительных площадях. Коррозия арматуры до 15 % сечения. Протечки перекрытия свыше 5 % общей площади перекрытия. Затопление тоннеля поверхностными водами |
| 5 | Ширина раскрытия трещин в конструкциях перекрестия более 1 мм. Разрыв отдельных стержней арматуры в растянутой зоне. Прогибы изгибаемых элементов более 1/50 пролета. Разрушение отдельных конструкций перекрытия от перегрузки |
Оголение всего диаметра арматуры. Коррозия арматуры более 15 % сечения. Снижение прочности бетона более 30 %. |
Табл. 13 - Оценка технического состояния мостов по внешним признакам
| Категория состояния конструкции | Признаки силовых воздействий на конструкцию |
Признаки воздействия внешней среды на конструкцию |
| 2 | Одиночные трещины на поверхности железобетонного пролетного строения раскрытием до 0,2 мм | Разрушение в отдельных местах окрасочного слоя главных элементов стальных ферм и проезжей части, незначительная коррозия элементов на отдельных участках, местные погнутости элементов стальных связей. Сколы защитного слоя железобетонного пролетного строения без оголения арматуры, одиночные места выщелачивания и потеки на поверхности бетона. В опорах разрушение раствора в отдельных швах опор, разрушение поверхности кладки в отдельных местах на глубину до 3 см в массивных и без обнажения арматуры в железобетонных конструкциях; одиночные трещины раскрытием до 0,5 мм в массивных и до 0,2 мм в железобетонных конструкциях |
| 3 | Прогибы изгибаемых элементов превышают 1/150 пролета. Многочисленные трещины в железобетонных конструкциях без предварительного напряжения до 0,2 мм и отдельные трещины более 0,3 мм, в том числе сквозные, наклонные трещины в стенках балок; в железобетонных предварительно напряженных пролетных строениях трещины с раскрытием до 0,15 мм |
В стальных пролетных строениях незначительная коррозия главных элементов ферм, коррозия до 15 % элементов проезжей части, узловых фасонок и элементов связей; ослабление отдельных заклепок, деформация отдельных элементов связей. В железобетонных пролетных строениях отслоение защитного слоя в отдельных местах с оголением арматуры, повреждение бетона плиты в отдельных местах от выщелачивания и размораживания. В опорах разрушение раствора в швах на значительной части опоры, разрушение поверхности кладки на глубину до 3 см, а в отдельных местах до 10 см, в железобетонных конструкциях с обнажением арматуры в отдельных местах, многочисленные трещины с раскрытием до 0,5 мм, одиночные до 2 мм в массивных, а в железобетонных конструкциях соответственно до 0,3 и 0,5 мм; потеки выщелачиваемого раствора в отдельных местах |
| 4 | Потеря местной устойчивости отдельных балок. Срез отельных болтов или заклепок в многоболтовых соединениях, ослабление групп заклепок в соединении главных элементов, разрывы отельных элементов связей. В железобетонных пролетных строениях многочисленные трещины раскрытием более 0,3 мм и отдельные трещины в балках до 1 мм; расстройство поперечных связей между балками |
Значительная коррозия до 25 % элементов стальных конструкций проезжей части, узловых фасонок и элементов связей при незначительной коррозии главных элементов ферм. В железобетонных пролетных строениях отслоение защитного слоя и оголение арматуры на значительных площадях, коррозия арматуры до 15 %; значительные повреждения бетона плиты от выщелачивания и размораживания. В опорах разрушение раствора в швах со сдвигом и выпадением одиночных камней; разрушение кладки в массивных конструкциях на глубину до 10 см, а в отдельных местах более 10 см; разрушение значительной части защитного слоя железобетонных конструкций с коррозией арматуры до 15 %, многочисленные развивающиеся трещины раскрытием до 2 мм, одиночные до 5 мм в массивных конструкциях и соответственно до 0,5 и до 1 мм в железобетонных; интенсивное выщелачивание раствора |
| 5 | В стальных пролетных строениях потеря общей устойчивости балок и сжатых элементов ферм, разрыв отдельных растянутых элементов ферм, наличие усталостных трещин в элементах главных ферм, в том числе перекрытиях накладками. В железобетонных пролетных строениях многочисленные трещины с раскрытием более 0,5 мм и отдельные трещины более 1 мм, косые трещины, пересекающие опорные зоны и зону анкеровки растянутой арматуры балок. Разрыв отдельных стержней рабочей арматуры в растянутой зоне, разрыв хомутов в зоне наклонной трещины, раздробление бетона в сжатой зоне. Выпучивание арматуры в сжатой зоне колонн и ферм |
Значительная коррозия стальных элементов главных ферм с уменьшением расчетного сечения элементов более 25 %. В железобетонных пролетных строениях оголение всего диаметра арматуры, коррозия арматуры более 15 % сечения, значительное повреждение бетона от выщелачивания и размораживания, снижающие прочность более 30 %. В опорах разрушение раствора в швах со сдвигом и выпадением рядов или групп камней, разрушение кладки на глубину более 10 см, в железобетонных опорах разрушение бетона с сильной коррозией более 15 % арматуры, сквозные трещины, расчленяющие конструкцию на части, крены опор заметные на глаз |
На рисунках, приведенных ниже, показаны наглядно основные повреждения строительных конструкций.

Рис. 1 - Повреждения стальных конструкций

Рис. 2 - Повреждения стальных конструкций

Рис. 3 - Дефекты сварных соединений

Рис. 4 - Места зарождения усталостных трещин в стальных конструкциях

Рис. 5 - Трещины при разрушении изгибаемых ж.б. элементов

Рис. 6 - Трещины при разрушении ж.б. элементов

Рис. 7 - Трещины в ж.б. балках

Рис. 8 - Трещины при разрушении плит

Рис. 9 - Трещины в ж.б. фермах

Рис. 10 - Технологические трещины в ж.б. балке покрытия

Рис. 11 - Расположение усадочных трещин на монолитной ж.б. стене резервуара

Рис. 12 - Характерные трещины ж.б. подкрановых балок

Рис. 13 - Повреждения фундаментов

Рис. 14 - Трещины от нагрузки в ж.б. оболочках

Рис. 15 - Характер развития трещин от нагрузки в сжатой кирпичной кладке

Рис. 16 - Повреждения каменных конструкций

Рис. 17 - Характерные трещины в стенах зданий от осадки основания

Рис. 18 - Трещины в растянутом стыке деревянной конструкции

Рис. 19 - Повреждения деревянных наслонных стропил

Рис. 20 - Повреждения деревянных стропил

Рис. 21 - Характерные повреждения конструкций жилых и общественных зданий

Рис. 22 - Характерные повреждения конструкций одноэтажных промышленных зданий

Рис. 23 - Характерные повреждения конструкций многоэтажных промышленных зданий

Рис. 24 - Повреждения стальных цилиндрических резервуаров

Рис. 25 - Повреждения стен ж.б. цилиндрических силосов

Рис. 26 - Трещины от нагрузки в ж.б. бункерах

Рис. 27 - Повреждения ж.б. прямоугольных резервуаров

Рис. 28 - Повреждения кирпичных дымовых труб

Рис. 29 - Повреждения кирпичных стен от сейсмических воздействий

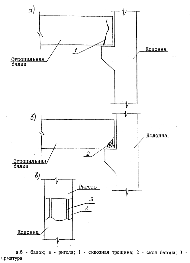
Рис. 30 - Повреждения ж.б. ригелей каркасных зданий от сейсмических воздействий

Рис. 31 - Разрушение ж.б. колонн от сейсмических воздействий
Закрыть